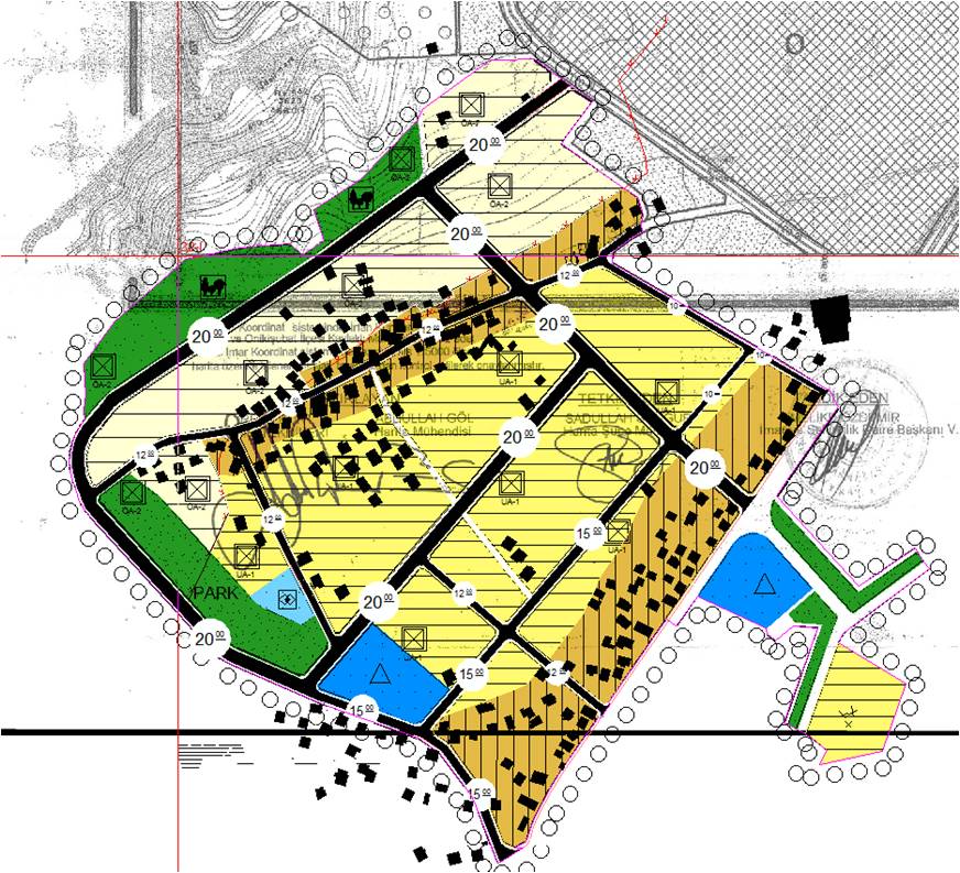
Askıya Çıkış:26.04.2016
Askıdan İniş:25.05.2016
25.05.2016’ da askıdan indirildi. Kesinleşen planlar ilçe belediyesine gönderildi.
Kahramanmaraş Büyükşehir Belediyesi Santral:0344 228 46 00